Live well in the heart of Alam Damai, Cheras at D’Parc Residence. Designed for those who value space and connectivity, this modern development places you close to UCSI University, established schools, retail destinations, and major highways— making daily living simple and convenient.

Enjoy well-planned 2–3 bedroom homes complemented by lifestyle facilities such as a swimming pool, gym, and children’s play areas, all within a secure residential environment. With monthly rentals starting from RM1,400*, D’Parc Alam Damai offers an attractive option for both own stay and investment.

Location Highlights

Nearby Landmarks / Highways :

  • UCSI University & Top Schools

  • Alam Damai Recreation Park

  • MRR2, SUKE, KL-Seremban Highway

Aerial View

Excellent for First-Home Buyer

D Parc Residence, Cheras  is thoughtfully designed to make your first step into home ownership simple, achievable, and rewarding.

Convenient location

Excellent for starter home

Practical layouts

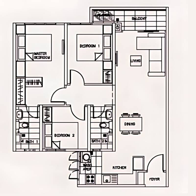
Flexible Layouts

580 sq.ft.

2 Rooms & 2 Bathrooms

680 sq.ft.

3 Rooms & 2 Bathrooms

811 sq.ft.

3 Rooms & 2 Bathrooms

Where Everyday Living Comes Together

From a scenic pool and gym to family spaces, BBQ area, and 24-hour security, the facilities here are designed to support an active, comfortable lifestyle.

Contact

Hours

Monday - Sunday
10AM - 5PM

D Parc Residence Showroom Hotline